Elhelyezték az új tanuszoda alapkövét Sárospatakon

Ünnepélyesen letették a Tokaj-hegyaljai Tanuszoda alapkövét szeptember 12-én Sárospatakon az Iskolakertben.

A tanuszoda a Tiszáninneni Református Egyházkerület, a Tokaj-Hegyalja Egyetemért Alapítvány és a Sárospataki Református Kollégium Gimnáziumáért Alapítvány együttműködésével épül meg. A beruházáshoz minden szereplő hozzáadott valamit: az egyik a területet, a másik a pénzt, a harmadik a terveket.

tn4-547495491_1224044003071993_6498360389445054496_n

Fotó: magánarchívum

A létesítmény alapkövét a Tiszáninneni Református Egyházkerület képviseletében Barna Sándor püspök és dr. Szemán Ákos főjegyző, a Tokaj-Hegyalja Egyetem és fenntartó alapítványa képviseletében Wáberer György kuratóriumi elnök és Prof. Dr. Kéri Szabolcs rektor, a Sárospataki Református Kollégium Gimnáziumáért Alapítvány képviseletében Vaskó Péter kuratóriumi elnök, valamint Sárospatak város képviseletében dr. Farkas Szabolcs polgármester helyezte el.

Alapkőletétel (1)

Fotó: magánarchívum

Barna Sándor, a Tiszáninneni Református Egyházkerület püspöke Ezsaiás könyve 5 fejezetének 10. és 11. versével szolgált az alkalmon.

„Mert ahogyan az eső és a hó lehull az égből, és nem tér oda vissza, hanem megöntözi a földet, termővé és gyümölcsözővé teszi; magot ad a magvetőnek és kenyeret az éhezőnek, ilyen lesz az én igém is, amely számból kijön: nem tér vissza hozzám üresen, hanem véghezviszi, amit akarok, eléri célját, amiért küldtem.”

A püspök kiemelte: az alapkő letétele mindig a hit és a remény aktusa és a jövőbe tekintés alkalma. Ma még csak terveket és reményeket látunk, de hiszünk abban, hogy Isten megáldja ezt a munkát, mert jó célra szánjuk, és közösségünk javát szolgálja majd.

Alapkőletétel (4)

Fotó: magánarchívum

Prof. Dr. Kéri Szabolcs, a Tokaj-Hegyalja Egyetem rektora beszédében hálát adott a közösségért, amelynek tagjai célul tűzték ki a sportuszoda megépítését, hálát adott az anyagi forrásokért, a békéért, amelyben a munkát el lehet kezdeni. Végül fohászkodott, hogy a lelki elerőtlenedés, a félelem és az ellenségeskedés ne szabjon gátat a cél elérésének.

Alapkőletétel (5)

Fotó: magánarchívum

– Az 1531-ben alapított Sárospataki Református Kollégiumban az 1857-ben megalakult önálló tanítóképzőt tartja jogelődjének a Tokaj-Hegyalja Egyetem, ezért is tudjuk, hogy testvérek voltak és ma is annak tartják egymást – mondta az egyházkerületi főjegyző. Dr. Szemán Ákos hozzátette: erőt meríthetünk az elmúlt öt évszázad alatt itt tanító és itt tanuló ezrek hitéből, tenni akarásából, makacs megmaradni vágyásából. De az az erő egyszersmind felelősség is, sőt kötelezettség, hogy a ránk bízatott feladataink, a nemes harc megharcolása, futásunk elvégzése, a hit megtartása terén dolgunk van. – A mi küldetésünk, hogy a pataki diákoknak a tudáson túl nevelésben, hitben, nemzeti öntudatban többet nyújtsunk – hangsúlyozta, majd rámutatott: jelentős fejlesztés alapköve kerül most az Iskolakert földjébe, amely összefogás eredményeként indulhat el. Bár 1869-ben, majd 1950-ben is elváltak és azóta is különváltan működnek az intézmények útjai, de a fontos célok érdekében a Sárospataki Református Kollégium tagintézményei és a Tokaj-Hegyalja Egyetem több területen is együttműködik.

Alapkőletétel (2)

Fotó: magánarchívum

Az egyházkerületi főjegyző példákat is említett a két egyetem együttműködésére, majd kiemelte, hogy a mostani tanuszoda-fejlesztés az együttműködés építészeti zászlóshajója lehet. Végül megköszönte Wáberer György kuratóriumi elnöknek és a Tokaj-Hegyalja Egyetem Kuratóriumának a segítségét, Nagy-Baló Csaba gimnáziumi főigazgató elszántságát, kitartását, a tervezők és más előkészítő feladatokban közreműködők munkáját és mindazok segítségét, akik bármilyen módon támogatták a tanuszoda ügyét. Köszönetet mondott a Szentháromság Istennek, hogy megengedte, hogy elérkezhessen ez a mai nap, elkezdődhessen az építkezés. Kérte az ő áldását a munkálatokra idézve a Zsoltárok könyvéből:

„Ha az Úr nem építi a házat, hiába fáradoznak az építők.”
Alapkőletétel (9)

Fotó: magánarchívum

– Sárospatak és a térség jövője szempontjából meghatározó pillanat következett be – kezdte beszédét Sárospatak polgármestere. Dr. Farkas Szabolcs szerint ez az uszoda több lesz egyszerű épületnél azáltal, hogy hozzájárul majd város közösségének egészségéhez és a sportélet erősödéséhez. – Az alapkő nemcsak egy építkezés kezdetét, hanem a közös jövőbe vetett hitünket is jelképezi, mert aki kősziklára épít, annak háza megáll. Álljon ez az uszoda is ilyen erős alapokon, és sok nemzedék javát szolgálja majd – fogalmazott.

Alapkőletétel (10)

Fotó: magánarchívum

Záróbeszédében Wáberer György, a Tokaj-Hegyalja Egyetemért Alapítvány kuratóriumi elnöke felidézte, hogy 50 éve érettségizett Sárospatakon, ezért is viseli szívén a pataki oktatás ügyét és nagyon szívesen támogat minden ezt segítő kezdeményezést, ahogy tette azt a sportcsarnok kapcsán is.

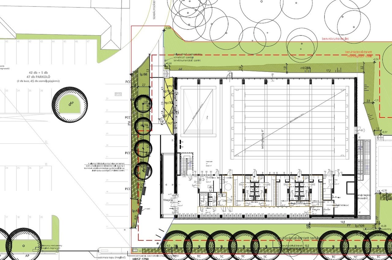
Tanuszoda tervkép 2

Fotó: magánarchívum

A rendkívül korszerű és energetikai szempontból is csúcsminőségű tanuszoda 1681 négyzetméteren egy 25 méter hosszúságú és 15 méter szélességű nagy medencével, valamint egy 9 méter hosszúságú, 6,5 méter szélességű kismedencével és 1715 négyzetméter területű parkolóval épül meg.

Az új uszoda elsődleges célja a sárospataki diákság kiszolgálása. Az egyetemi hallgatók mellett a Sárospataki Református Kollégium Gimnáziumának és Általános Iskolájának tanulói is rendszeres használói lesznek.